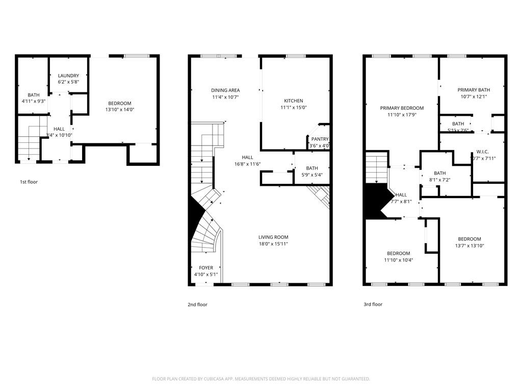
Bedrooms: 4

Bathrooms: 3 full | 1 partial

2223 SQ FTSource: Public Records

725 Wexford Cove Way #13

Mableton, GA 30126

$435,900

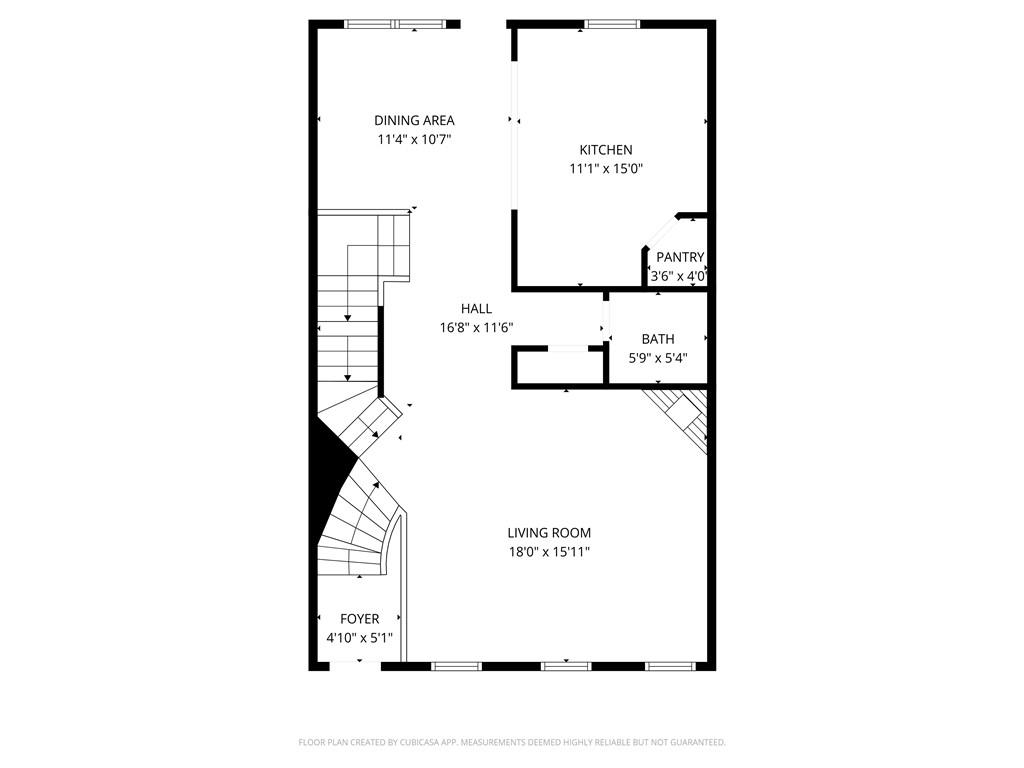
Experience refined townhome living in the gated Providence community of Mableton. Built in 2017, this meticulously maintained 4-bedroom, 3.5-bath residence offers 2,223 square feet of thoughtfully designed living space across three levels. The main living level features hardwood flooring, a separate dining room, and an open-concept layout anchored by a cozy fireplace. The kitchen offers updated appliances, a modern backsplash, and a breakfast bar that flows seamlessly into the living area, ideal for both everyday living and entertaining. A convenient half bath completes the main floor. Upstairs, the spacious primary suite provides a relaxing retreat with double vanities, a soaking tub, and a separate shower. Two additional bedrooms and a full bath offer flexibility for guests, office space, or additional living needs. The terrace level includes a private bedroom and full bath, ideal for guests or multi-purpose use. Outdoor living is enhanced by both a deck and patio area. The attached 2-car garage is equipped with an electric vehicle outlet and includes a dedicated workshop nook, providing added functionality for projects, storage, or hobby space. For added peace of mind, the home features a new Daikin HVAC system installed in 2025, complete with a 12-year transferable warranty. Residents of Providence enjoy gated access and resort-style amenities including a clubhouse, swimming pool, tennis courts, playground, sidewalks, and a neighborhood nature trail with connectivity toward the Chattahoochee River. Outdoor enthusiasts will appreciate the proximity to Discovery Park at the Riverline, featuring a scenic boardwalk trail, as well as nearby Sweetwater Creek State Park and additional green space options. Mableton continues to grow with new dining and retail options, including recently opened restaurants and a Chick-fil-A located just minutes from the neighborhood. Conveniently located approximately 20 minutes from Midtown Atlanta and popular destinations such as Krog Street Market, this home offers convenient access to city amenities while maintaining the comfort and privacy of a residential community. Move-in ready and thoughtfully appointed, this home presents an exceptional opportunity in one of Mableton’s established gated communities