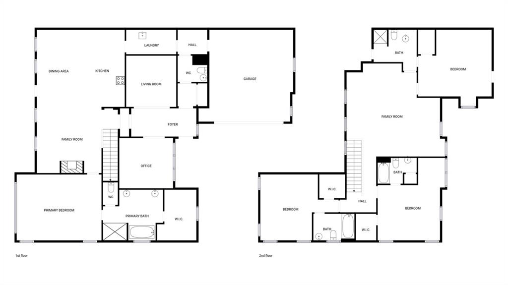
Bedrooms: 4

Bathrooms: 4 full | 1 partial

3503 SQ FTSource: Owner

1803 Kent Avenue

Atlanta, GA 30338

$1,070,000

Explore the interior layout that awaits at 1803 Kent Ave. A fireplace anchors the main room. The kitchen features a kitchen island, an accent backsplash, and stainless steel appliances. The primary bedroom features a spacious walk-in closet. The primary bathroom includes double sinks and a separate tub and shower. Exterior features include a covered patio and a fenced in backyard. The residence contains partial flooring replacement. This home is a perfect blend of style and comfort, waiting for you to make it your own. Included 100-Day Home Warranty with buyer activation